Relevés habités
Résidence Beauséjour
Ivry-sur-Seine

Je veux bien d’un monde
où les architectes ne construisent plus

2020



La Résidence Beauséjour, construite en 1960 par l’architecte Jacques Delaire,
présente un aspect extérieur standardisé et répétitif. Néanmoins, les espaces
intérieurs ont été appropriés par les habitants. Certains vivent dans cette résidence
depuis sa construction, leur lieu de vie représente une grande partie de leur histoire
et de celle de leur famille. D’autres ont emménagé depuis peu, ou sont locataires :
le niveau d’investissement matériel et émotionnel de l’espace est différent
selon tous ces critères et ces parcours de vie. 

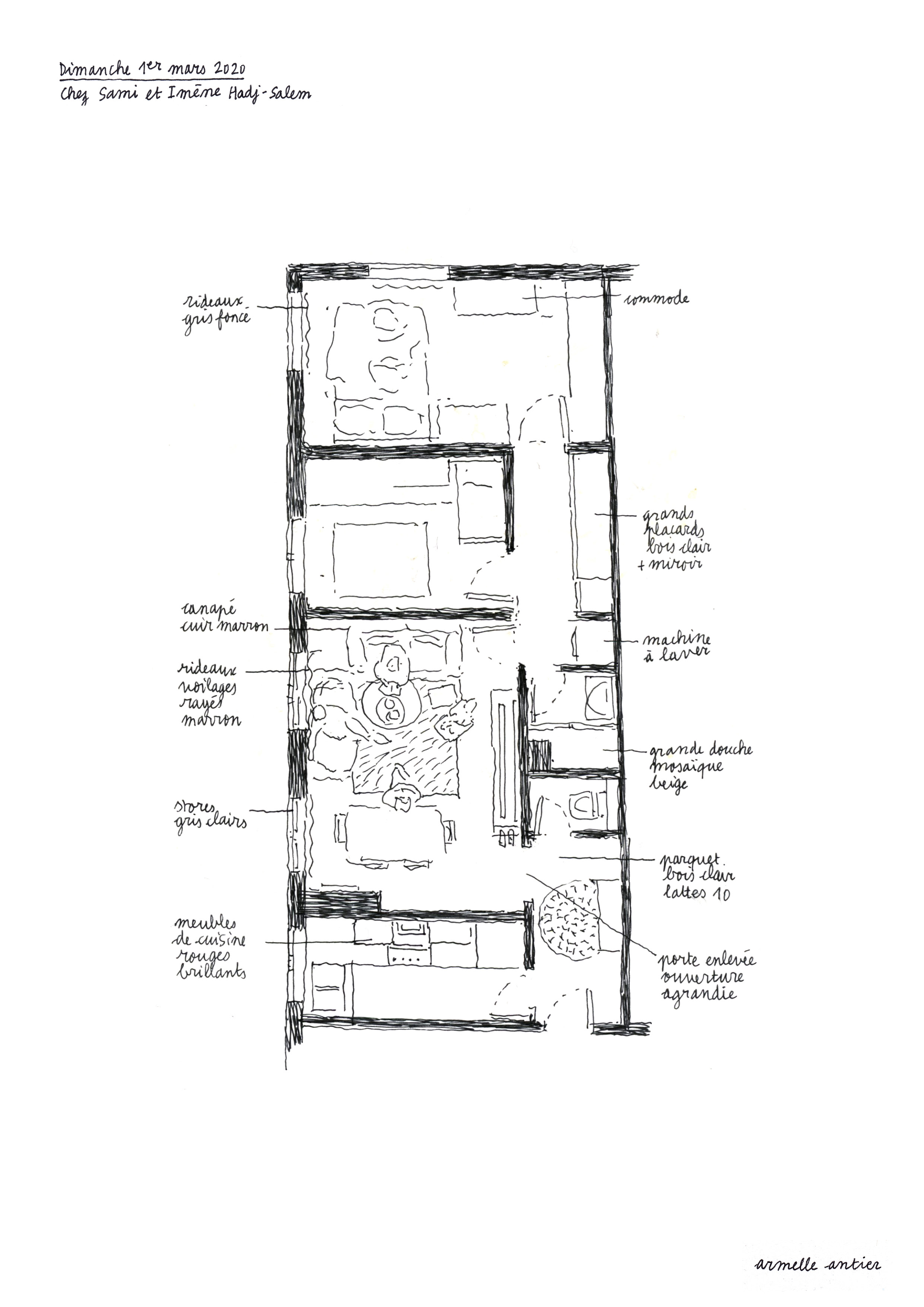
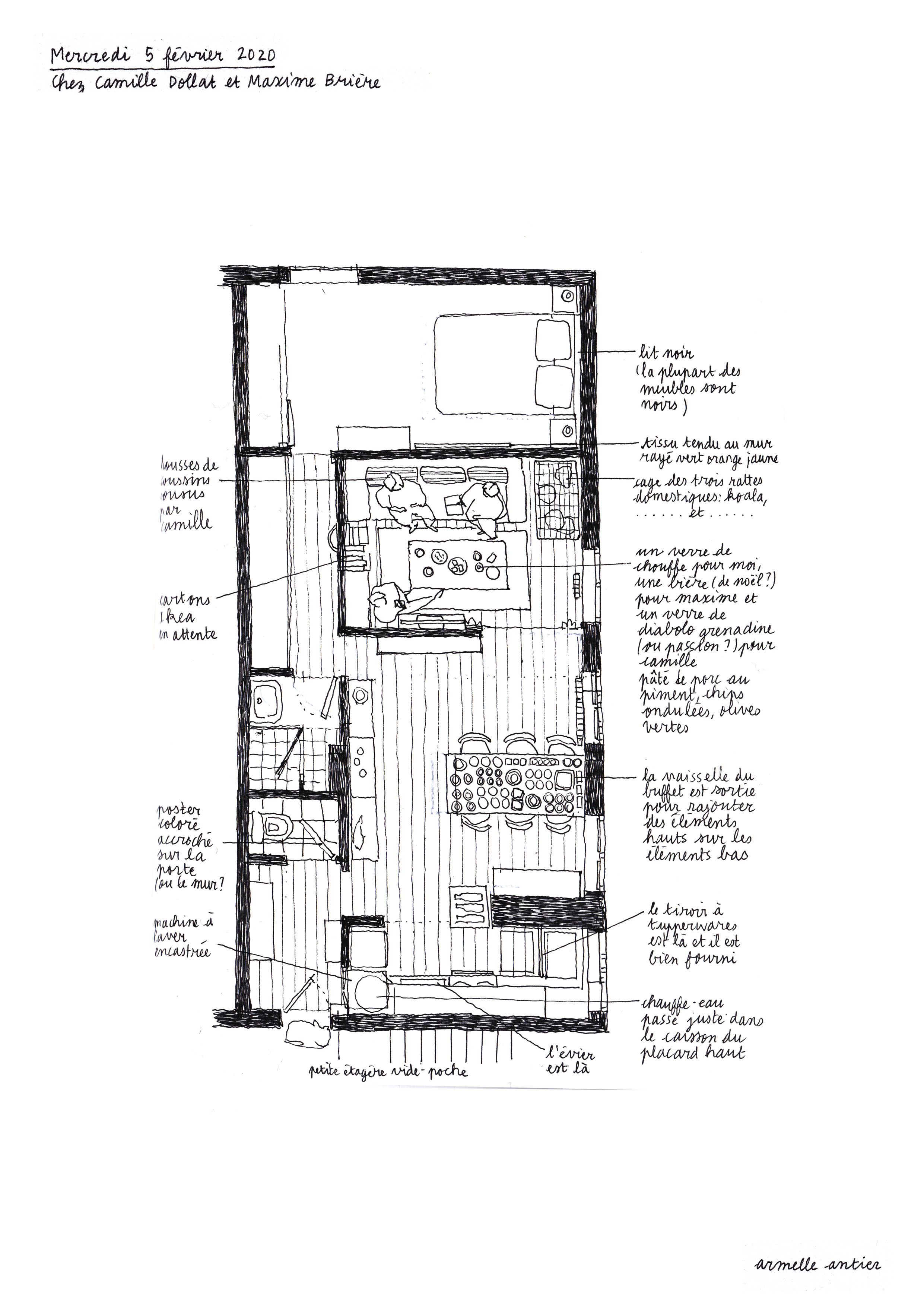
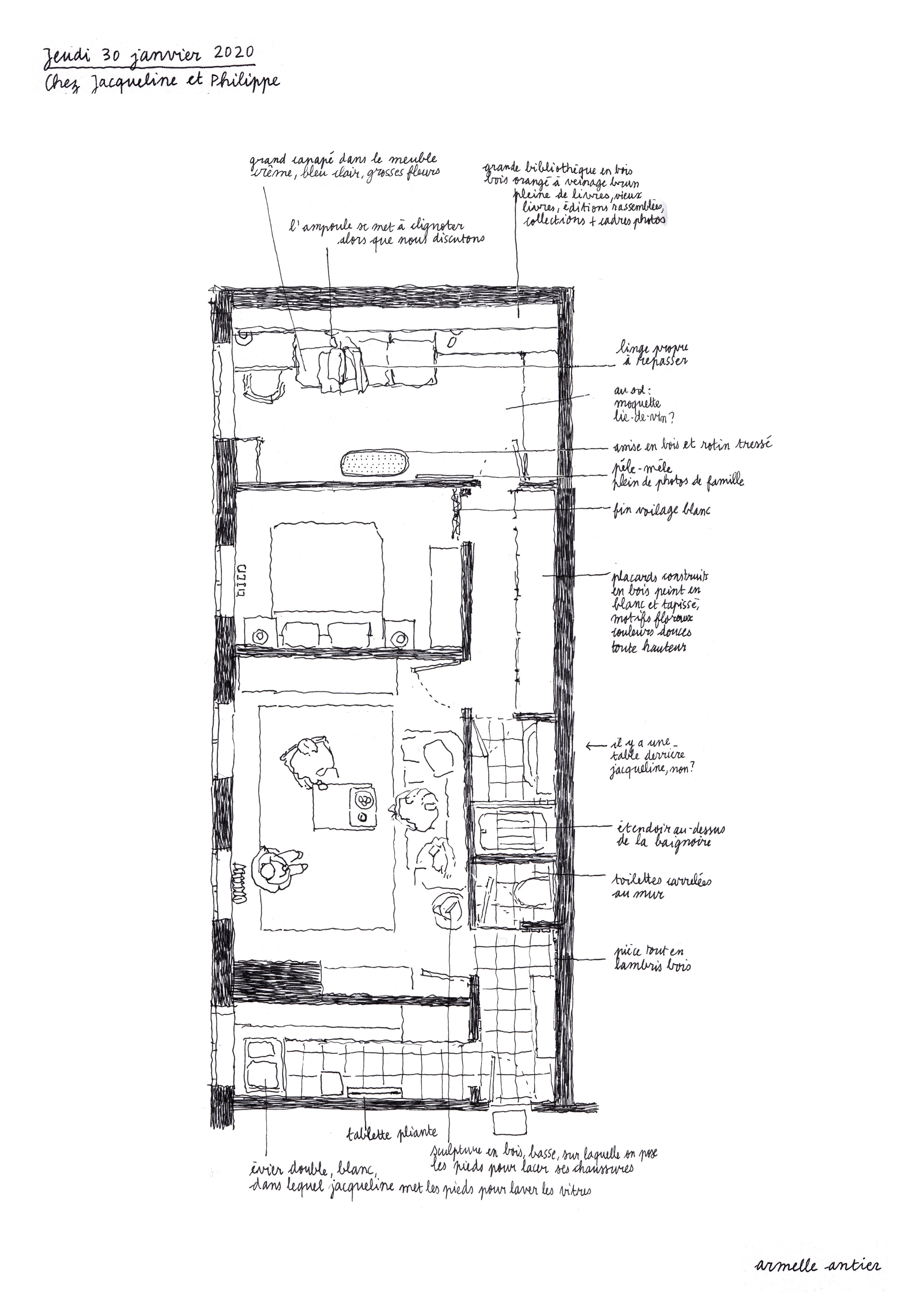
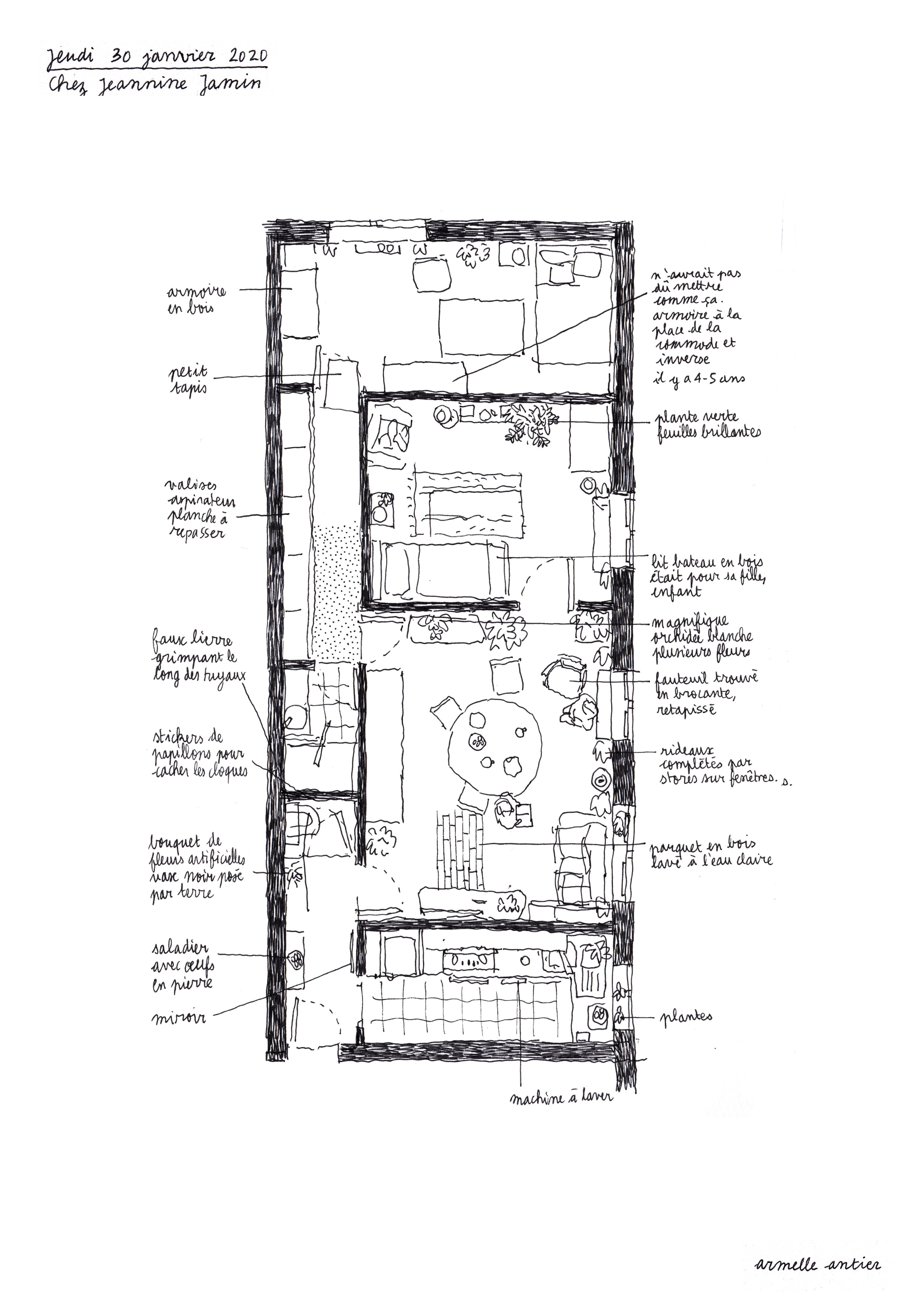
Le relevé habité est un outil utilisé en ethnographie pour représenter et analyser des espaces. Je me le suis approprié pour rendre compte des visites d’appartements que j’ai effectués pendant trois mois,  de janvier à mars 2020. Ce sont des dessins réalisés ensuite,
de mémoire. Cela me permet d’être attentive pendant la visite et la discussion,
et de restituer ce qui m’a paru essentiel.  

Merci aux habitants qui m’ont accueillis dans leurs appartements :
Sabine, Luis et Nathalie, Pierre et Audette, Jeannine,
Jacqueline et Philippe, Louis, Nithyan, Camille et Maxime,
Shahram, Chloé, Hugo et Elise, Cheng.

Armelle Antier
Entrepreneur Individuel (EI)
antierarmelle@gmail.com
06 83 52 27 46

︎ @armelleantier